Dobrodošli. Iščete stanovanje ...
3-sobno stanovanje (TURISTIČNI APARTMA ZA ODDAJANJE), 96,64 m2, Bežigrad - Ljubljana. 409.000 EUR neto + 22% DDV. Možnost odbitka DDV.
Poslovni apartma je dobra investicija, saj lastniku dovoljuje dolgoročno ali kratkoročno oddajo preko Air Bnb ali Booking-a.
Priporočljiv je nakup na podjetje. V enoti ni možno prijaviti stalnega prebivališča.
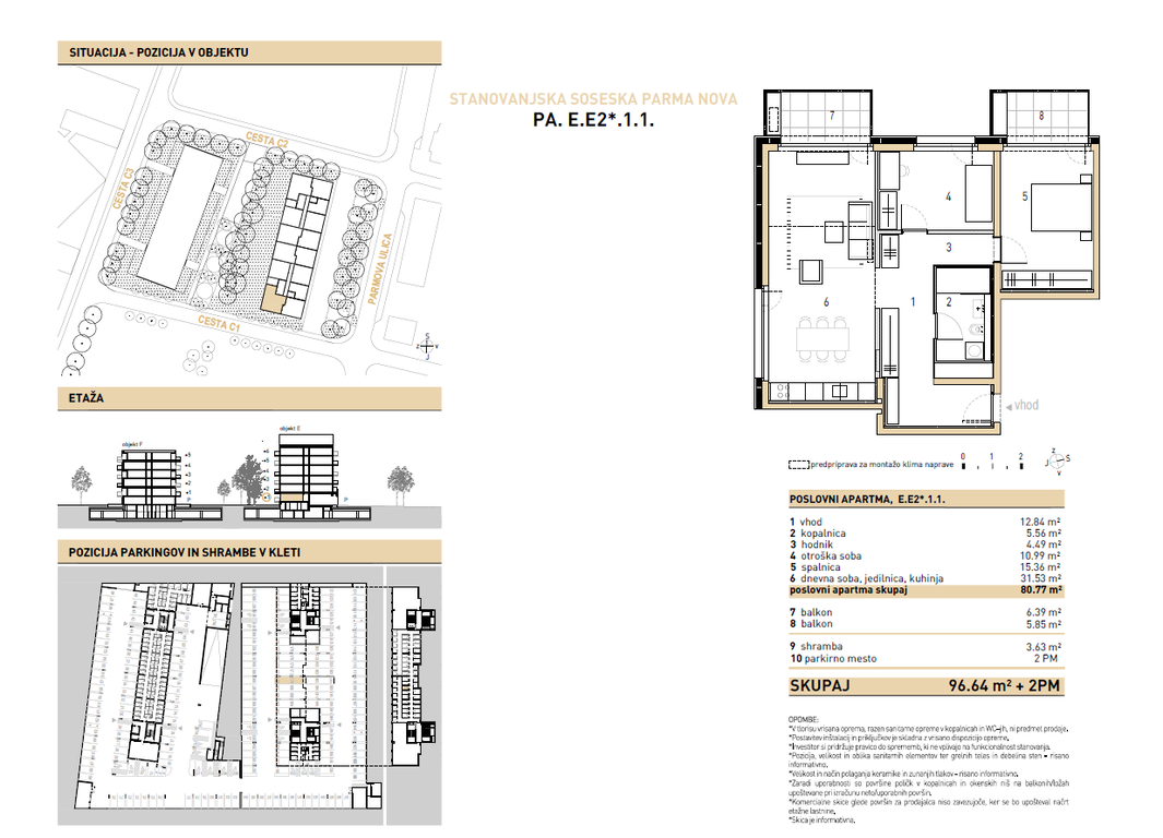
Za Bežigradom na Parmovi ulici v novi soseski Parma Nova v neposredni bližini vse potrebne infrastrukture prodamo svetlo in tlorisno funkcionalno 3 sobno stanovanje. Stanovanje se nahaja v 1.nadstropju od skupno sedmih nadstropij. V objektu je dvigalo. Objekt bo dokončan jeseni leta 2026, predvidena primopredaja v začetku leta 2027.
Enoto se lahko odda dolgoročno ali kratkoročno. Prijava stalnega bivališča NI mogoča.
Površina stanovanja in lega
Stanovanje skupno obsega 96,64 m2, od tega je 80,77 m2 bivalne površine, 12,24 m2 balkona in 3,8 m2 kleti.
Razporeditev prostorov
Stanovanje obsega vhod, hodnik, kopalnico, spalnico z izhodom na balkon, otroško sobo in osrednji bivalni prostor s kuhinjo z izhodom na balkon. Stanovanje je obrnjeno proti zahodu in gleda na notranji park.
Oprema
Stanovanje bo izdelano na ključ, položen bo hrastov parket ter kopalniška keramika s sanitarno opremo.
Ogrevanje in priključki
Ogrevanje na mestni toplovod. Talno gretje.
Optika.
Parkirno mesto
Stanovanju pripadata 2 notranji parkirni mesti v podzemni garaži.
Lokacija
Stanovanje se nahaja na idilični lokaciji na Parmovi ulici v bližini vse potrebne infrastrukture in v neposredni bližini centra mesta. V neposredni bližini osnovna šola, vrtec, pošta, banka, zdravstveni dom, trgovina, AC priključek itd. V neposredni bližini veliko zelenih površin in sprehajalnih poti ter hrib Rožnik.
Dodatno
Več o projektu in prostih enotah si lahko ogledate na naši spletni strani: https://parmanova.uniko.si/

Severity: Notice
Message: Undefined property: CI::$detail_url_segment
Filename: core/Model.php
Line Number: 51
Severity: Notice
Message: Undefined property: CI::$detail_url_segment
Filename: core/Model.php
Line Number: 51
Severity: Notice
Message: Undefined property: CI::$detail_url_segment
Filename: core/Model.php
Line Number: 51
Severity: Notice
Message: Undefined property: CI::$detail_url_segment
Filename: core/Model.php
Line Number: 51
Severity: Notice
Message: Undefined property: CI::$detail_url_segment
Filename: core/Model.php
Line Number: 51
Severity: Notice
Message: Undefined property: CI::$detail_url_segment
Filename: core/Model.php
Line Number: 51
Severity: Notice
Message: Undefined property: CI::$detail_url_segment
Filename: core/Model.php
Line Number: 51
Severity: Notice
Message: Undefined property: CI::$detail_url_segment
Filename: core/Model.php
Line Number: 51
Severity: Notice
Message: Undefined property: CI::$detail_url_segment
Filename: core/Model.php
Line Number: 51
Severity: Notice
Message: Undefined property: CI::$detail_url_segment
Filename: core/Model.php
Line Number: 51